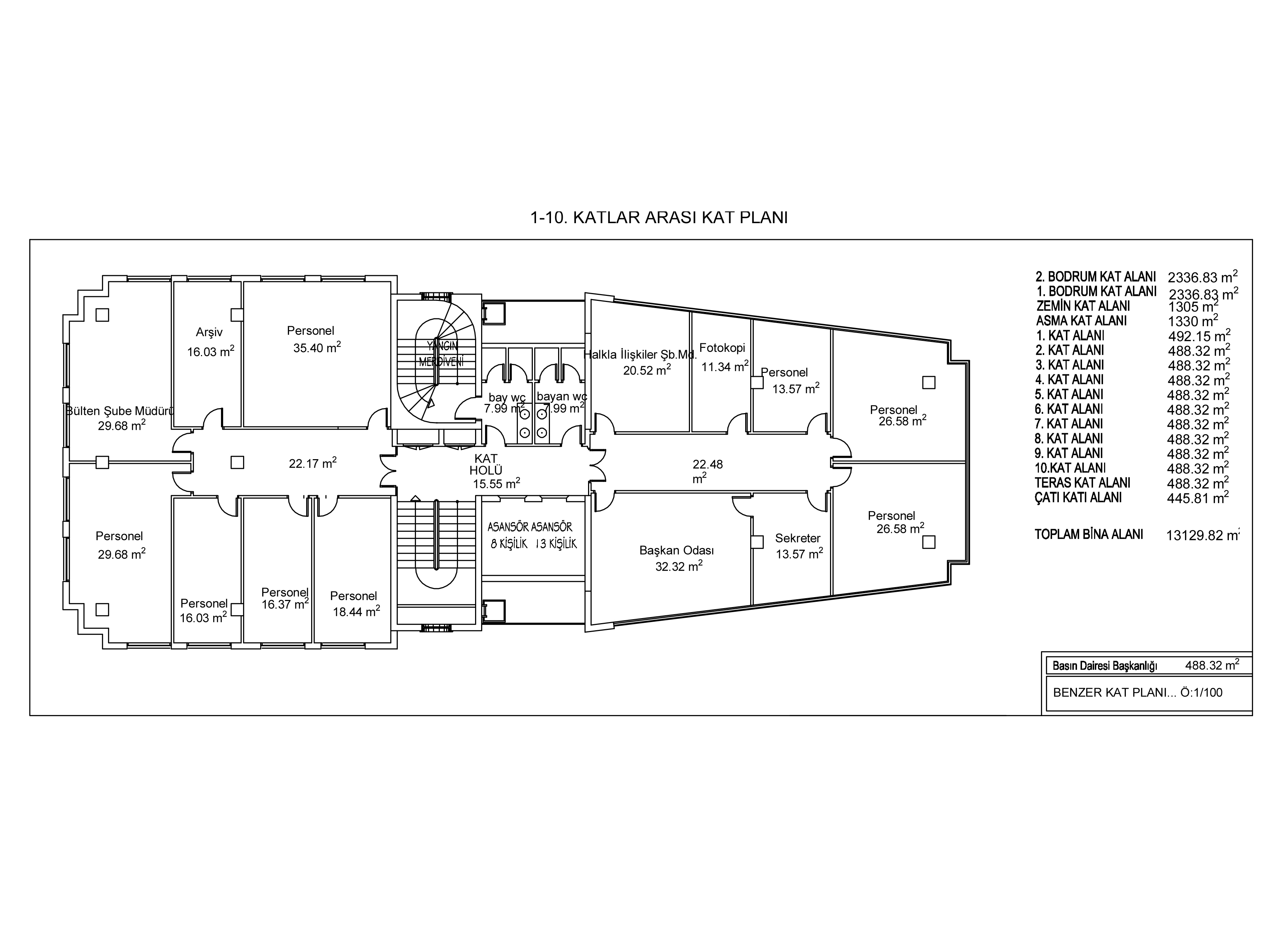
MFZ BALGAT PLAZA

Geleceğinizi bugünden şekillendiriyoruz.
MFZ BALGAT  PLAZA

İL / İLÇE

ANKARA / ÇANKAYA

SEMT

CEYHUN ATUF KANSU CADDESİ 122/BALGAT

ADA

9896

PARSEL

47

KAT

15 KAT

METRAJ

13.130 M2

- 18 adet normal ofis + 2 adet dublex ofis ve 7 adet cadde cepheli asma katlı mağaza olmak üzere toplam 27 bağımsız bölüm bulunmaktadır.
- Kafeterya
- Kütüphane
- 190 kişilik zemin katta ve 16 kişilik 1.katta yemekhane
- 250 kişilik toplantı salonu
- 68 kişilik basın odası
- 350 kişilik sergi salonu
- Merkezi ısıtma sistemi
- Merkezi sıcak su tesisatı
- Tam beslemeli Jenaratör
- 2 adet Kone marka asansör
- 78 araçlık kapalı otopark
- Bay – Bayan Mescit
- Her katta Bay- Bayan Wc bulunmaktadır.